欢迎光临寻材问料网!
材料数据库
英文站
登录
注册
快速登录
首页
创新设计
解决方案
材料数据库
社区
当前位置:
社区
搜索结果
最新发表
最新回复
最多查看
最多回复
精华
0
科学家开发出“冷原子热电系统”模型
据美国每日科学网近日报道,19世纪,科学家们发现,将热电材料加热会生成少许电流,但将获得的电流提高到能胜任现代科技的需要一直是个巨大的挑战。现在,瑞士科学家设计出了一种新奇的模型——“冷原子热电系统”,有望大幅提高热电材料的电流强度。发表在最新一期《科学》杂志上的最新研究也将有助于科学家们模拟并设计出新...
拯救007
2015-08-29更新
(
6
)
(
0
)
回复(0)
阅读(106)
0
不锈钢锻造的毛坯加热工艺
不锈钢锻前加热可用电炉,也可以用火焰炉。生产中多用火焰炉,因其成本较低。炉气气氛应保持中性或微氧化性。对于奥氏体不锈钢,不可采用还原性气氛,以免产生增碳或贫铬,使晶间腐蚀抗力下降;对于马氏体不锈钢,因含碳量较高,不可采用过分氧化的气氛,以免引起严重脱碳。用火焰炉加热时,还应注意燃气应基本上保持不含硫化...
麓果
2015-08-29更新
(
6
)
(
0
)
回复(0)
阅读(139)
0
产品设计中的塑料表面处理
卖瓜人
2015-08-29更新
(
6
)
(
0
)
回复(0)
阅读(227)
0
硅片制备阶段的问题
在硅片的制造过程中,涉及到许多参数。而且这些参数中有许多会因最终硅片目标不同而发生变化。对硅片来说,有一些参数始终是很重要的,如平整度、缺陷、沾污等。当硅片被不正确运行的刀片所切割时,就会造成弯曲的刀口。这些刀口都不会相同,这就使硅片有不同种类的平面缺陷。因此应以尽可能平的面去切割硅片。有不同的测量方...
特斯拉
2015-08-29更新
(
6
)
(
0
)
回复(0)
阅读(355)
0
低碳城市建筑生活解决方案(ALCCAL)论坛探讨深圳国际低碳城市的未来
为了有效地指导这处已经规划三年的国际低碳城市的建设,深圳设计中心举办了“低碳城市建筑与生活解决方案”系列活动。此次会议位于中国南部深圳东30公里的坪地,由深圳坪地国际低碳城(ILCC)规划建设领导办公室和深圳龙岗区政府共同主办。本次活动研讨了减少二氧化碳排放的可能解决方案,这也是在世界上的政策制定者、研究者...
浮沉
2015-08-29更新
(
6
)
(
0
)
回复(0)
阅读(231)
0
按灯拣货传感器帮助实现装配线数字化
为了使复杂的发动机表现出设计者所赋予它们的巨大潜能,必须要在生产过程中注重每一个环节的完美。而要确保每个环节都既达到高精细度,又满足工业生产必需的高效率,就必然要借助最先进的生产制造技术才能实现。邦纳公司的按灯拣货系统Pick-to-Light可以有效帮助客户解决以上的难题。成功案例某客户为国际著名的发动机制造商...
我就叫匿名
2015-08-29更新
(
6
)
(
0
)
回复(0)
阅读(186)
0
一种新材料可用于高效海水提铀
记者近日从哈尔滨工程大学获悉,由该校牵头的“先进海洋材料协同创新中心”“海水提铀纳米功能材料创新团队”研发出了高效“海水提铀”新材料。通过酯化与聚合反应对某种植物纤维进行表面改性,研发出高吸附容量、高选择性的铀吸附剂,攻克了铀的吸附、脱附与分离纯化一体化的提取技术难题。 据哈尔滨工程大学教授、该项...
拯救007
2015-08-29更新
(
6
)
(
0
)
回复(0)
阅读(141)
0
索尔维和RTP公司携手扩展索尔维Radel?R-7000 PPSU聚合物 在全球飞机应用市场的供应
乔治亚州阿尔法利塔市,2015年8月25日– 高性能热塑性塑料全球领先供应商索尔维特种聚合物今天宣布一项新的许可协议,允许定制工程热塑性塑料世界级合成加工商RTP公司面向全球商用飞机行业生产和销售索尔维Radel® R-7000系列聚亚苯基砜(PPSU)树脂。该协议将大大拓宽这一业界广为认可的高性能聚合物家族在全球的供应,进...
独行侠
2015-08-29更新
(
6
)
(
0
)
回复(0)
阅读(203)
0
美国一大学开发出牙科修复材料的新技术
一种基于美国CU-Boulder工程团队开发的新型牙科修复材料,已由3M公司推出,这项技术给牙科护理专家和病人们带来了福音。 基于CU-Boulder化学和生物工程系的Christopher Bowman教授的研究工作,3M ESPE公司的一个团队开发了这种新型聚合物。牙医使用这一种材料就可填补牙洞,然后通过光固化使其达到所需的强度和形状。“此...
考拉
2015-08-29更新
(
6
)
(
0
)
回复(0)
阅读(159)
0
苹果真的要和宝马联合打造世界上电动汽车么?求真相
据《经理人杂志》称,库克与其他苹果高管最近在莱比锡与宝马高管会晤,并参观了i3生产线。消息称,苹果对i3的碳纤维车身感兴趣。i3车身选择了创新的碳纤维材质:先由纤维丝纺成纱线,再织成布料,之后将织成的布料放入模具,加入树脂硬化后才诞生。碳纤维材质重量约是传统钢材重量的1/4、铝材重量的1/3。
独行侠
2015-08-29更新
(
6
)
(
0
)
回复(0)
阅读(203)
0
English Cycles Na
Harry
2015-08-29更新
(
6
)
(
0
)
回复(0)
阅读(116)
0
科学家研制出新型纳米振荡器
振荡器是一种将直流信号转化为具有一定频率交流信号的电子元件,在电子工业、医疗、科学研究等方面具有广泛应用。近年来,随着移动通信和卫星通信的迅速发展,对振荡器件小型化、集成化的要求越来越迫切。同时,移动通讯也向高频化和宽频化发展,目前商用的LC振荡器体积大(微米量级)、频率较低(如GPS:1.6 GHz;GSM: 850 M...
思想聚焦
2015-08-29更新
(
6
)
(
0
)
回复(0)
阅读(189)
0
【工艺】金属的深拉伸成型(Deep Drawing)
金属的深拉伸成型(又名拉深),是把金属板材冲压成空心柱体的工艺。深拉伸技术在生产过程中应用非常广泛,例如生产汽车零件;还可以用来制造家用产品,例如不锈钢厨房洗碗槽。 工艺成本:模具费用(极高),单件费用(中) 典型产品:食品饮料包装,餐具厨具,家具,灯具,交通工具,航天等 产量适合:适合大批量生产 质量:成...
一生的眼泪
2015-08-29更新
(
6
)
(
0
)
回复(0)
阅读(343)
0
新型柔性可自愈电路 被切断后一分钟即可恢复通电
a)在被切成两半后,导电超级凝胶不但能够自我修复,还能承受住被镊子从一侧夹起来时自身的重量。b)凝胶电路能够自行修复因反复折叠产生的裂痕。c)一个自我修复电路点亮了LED灯,在被弯曲、切断和折叠后都能实现自我修复。经得起弯曲,耐得住折叠,被彻底剪断后也能自行修复,且功能完好如初。美国科学家日前开发出一种在室...
独行侠
2015-08-29更新
(
6
)
(
0
)
回复(0)
阅读(136)
0
半导体激光器光刻工艺
月光城
2015-08-29更新
(
6
)
(
0
)
回复(0)
阅读(399)
0
铝的发现及行业发展
铝的发现及行业发展铝的发现铝较其他金属发现的比较晚一些。1808年汉弗里•戴维爵士确定了明矾的存在,并在开始将其中的铝称为Alumium后改为Aluminum (铝)。1825年丹麦化学家和物理学家汉斯•奥斯开始进行试验尝试提取铝,直到1827年弗里德里希•维勒用金属钾还原熔融的无水氯化铝得到较纯的金属铝单质。“如珍珠一样贵重的...
二哈
2015-08-29更新
(
6
)
(
0
)
回复(0)
阅读(174)
0
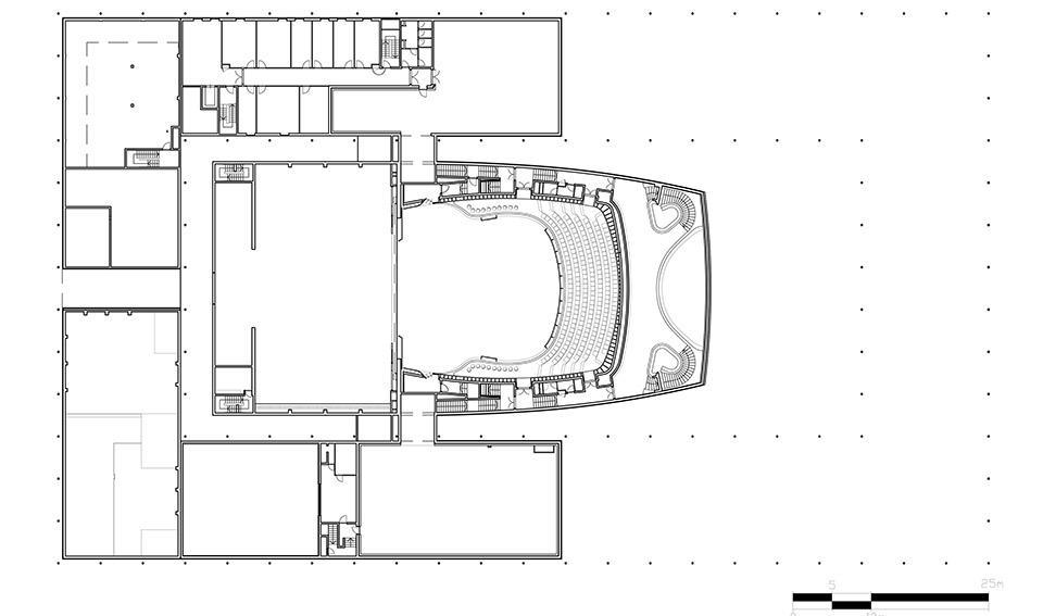
巴林国家大剧院
本项目旨在区域和全球范围内展示巴林王国的艺术与文化。巴林在阿拉伯语中意为“两个海洋之间”:描绘了这颗波斯湾明珠孤独地坐落在海天相交的极度水平面上的生动画面,这一寓意也正是大剧院的灵感来源之一:用巴林与海洋的结合来演绎一道水平线的风景。这座建筑面积达12,000平方米的剧院面向国家博物馆的泻湖,使周围的景色一...
等风来
2015-08-29更新
(
6
)
(
0
)
回复(0)
阅读(82)
0
什么样的钢能让汽车轻装前行?
在汽车工业高度发达与社会日益融合的今天,汽车轻量化是节省燃油消耗、降低排放最好的途径之一,同时它还带来了生产制造过程中的节能和汽车安全性能的提升。高强度钢使用效果明显 一般而言,若汽车整车重量降低10%,燃油效率可提高6%~8%;汽车整备质量每减少100公斤,整车每百公里油耗可降低0.3~0.6升。截至目前,应用高强度...
Lamp
2015-08-29更新
(
6
)
(
0
)
回复(0)
阅读(182)
0
铝氮比对轿车用渗碳钢晶粒混晶的影响
渗碳钢品种繁多,主要应用于工程机械、商用车和轿车等,其中轿车用渗碳齿轮是技术质量要求最高的。齿轮制造过程中,其表面需经渗碳化学热处理,而齿轮 渗碳温度高(930℃)、渗碳时间长(3~6h),该条件下奥氏体晶粒长大的倾向明显,易出现晶粒粗大或混晶现象。若齿轮渗碳淬火后出现严重的混晶现象, 将导致齿轮淬火变形和开...
美丽人生
2015-08-29更新
(
6
)
(
0
)
回复(0)
阅读(192)
0
电子元器件失效分析与检测
失效分析在产品的可靠性质量保证和提高中发挥着重要作用,在产品的研发、生产、使用中都需要引入失效分析工作。CTI失效分析实验室作为CTI一站式服务的重要组成部分,拥有一支经验丰富、技术精湛的服务团队,各种先进的检测、分析仪器,同时依托于CTI强大的多学科技术网络,可以为客户提供高效、准确、公正的检测、分析服务。...
夏洛克
2015-08-29更新
(
6
)
(
0
)
回复(0)
阅读(197)
上一页
731
732
733
734
735
736
737
738
739
740
下一页
共1077页
转到第
相关话题
材知道
70 人关注
比亚迪、富士康纷纷入围!2016手机行业最佳供应商重磅出炉
汽车
40 人关注
汽车产业链全景图
材知道
70 人关注
必看!机器人产业链全景图
汽车
40 人关注
新能源汽车产业链全景图
交通运输
19 人关注
高铁产业链全景图
材知道
70 人关注
【重大新闻】《新材料产业发展指南》正式发布 聚焦九大重点任务
热门人物
新材料在线-发哥
CIO
深圳市寻材问料网络科技有限公司
gdcjz
cmf设计师
深圳市优维尔科技有限公司
Andrew
测试经理
赛瑞
qlh9005
研发工程师
夏洛克
夏洛克
sunsun
材料工程师
寻材问料管理员
网站管理员
寻材问料
400-7755-899